Proprietà Residenziali Stampa

In Vendita € 190.000,00 293 Visualizzato

Descrizione Proprietà

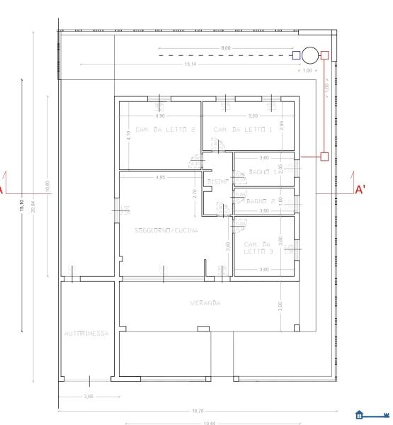
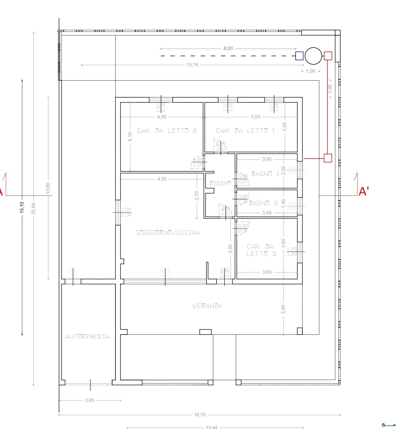
**BIFAMILIARE DI NUOVA COSTRUZIONE - BRUCOLI SR** Scopri questa splendida villa bifamiliare di nuova costruzione situata a Brucoli, nella tranquilla zona di C. da Bongiovanni. Con una superficie interna di 100 mq, questa casa è l'ideale per famiglie o per chi cerca comfort e stile in un ambiente spazioso e luminoso. La generosa zona giorno è perfetta per momenti di convivialità, mentre le tre camere da letto offrono privacy e tranquillità. I due bagni moderni sono progettati per garantire funzionalità e comfort, rendendo ogni giorno un'esperienza piacevole. Non perdere l'opportunità di goderti l'ampia veranda, ideale per prendere il sole e organizzare cene all'aperto con amici e familiari. Inoltre, il garage offre spazio sufficiente per veicoli e ulteriore spazio di stoccaggio. La villa è attualmente in fase di costruzione e non è mai stata abitata, permettendo la possibilità di personalizzarla secondo i propri gusti. Situata in una delle zone più belle della Sicilia, questa casa rappresenta un'opportunità unica per vivere in un contesto sereno e affascinante. Non lasciarti sfuggire questa occasione!

Informazioni

  • Indirizzo C.DA BONGIOVANNI, BRUCOLI
  • Prezzo € 190.000,00
  • Tipo Proprietà: RESIDENZIALE
  • Contratto: In Vendita
  • Tipologia: Villetta a schiera
  • Piano: terra
  • Superficie: 100 mq
  • Vani: 4
  • Classe energetica: In corso

Struttura

Bagni:
2
Box/garage:
Si

Dettagli

Gas:
Rete METANO disponibile
Parcheggio:
Privato
Condominio:
No

Mappa

La Souveraineté Monétaire de l'Usager : Pourquoi les Solutions Préchargées Captivent le Secteur

Le domaine du iGaming se présente comme un laboratoire d'innovations permanentes, mais aucune rupture technologique n'a eu un impact aussi profond sur le bien-être des parieurs français que la transformation des flux transactionnels. Si les portefeuilles virtuels et les actifs cryptographiques possèdent leurs adeptes respectifs, le coupon préchargé demeure le souverain incontesté en matière de clarté et de protection. En 2026, alors que la cyber-résilience se trouve au centre de toutes les préoccupations, la faculté d'opérer des règlements sur le web sans jamais exposer ses informations confidentielles est un privilège métamorphosé en nécessité absolue. Les utilisateurs exigent prioritairement une immersion dénuée de toute friction, où l'ingénierie logicielle s'efface discrètement au profit d'un divertissement authentique et sécurisé.

La logique opérationnelle de ces titres est l'antithèse absolue des protocoles administratifs bancaires fastidieux. Le concept repose sur la transmutation de capital fiduciaire en une séquence alphanumérique, véritable « titre au porteur » dématérialisé. Cette numérisation des fonds liquides procure une autonomie de mouvement sans précédent. Vous avez la possibilité d'acquérir votre sésame dès l'aube en visitant votre point de presse habituel, ou tardivement par le biais d'une interface de distribution certifiée sur votre smartphone. Une fois en possession de cette clé de seize chiffres, vous détenez le moteur de votre évasion ludique. Sur l'interface de pari, le capital est transféré en une fraction de seconde. Il n'existe aucun délai de latence, aucune validation intermédiaire par un tiers, ni aucun risque de suspension par une institution bancaire trop rigide qui analyserait avec suspicion les transferts vers les univers de jeux.

C'est précisément cette émancipation qui séduit le public contemporain. Le parieur réclame le contrôle total sur ses propres mouvements de fonds. Il n'est plus assujetti aux créneaux de fonctionnement des banques physiques ni aux interruptions de service des serveurs monétaires traditionnels. Par ailleurs, la nature éphémère et à usage unique des coupons neutralise virtuellement tout péril de fraude répétitive. Même dans l'hypothèse hautement improbable où une interface malveillante parviendrait à intercepter le code après sa consommation, celui-ci serait dépourvu de toute valeur résiduelle. C'est une muraille de protection infranchissable qui apporte une sérénité indispensable tant aux nouveaux venus qu'aux parieurs les plus expérimentés du casino virtuel moderne.

Afin de saisir pourquoi cette modalité supplante les autres options, il convient d'observer ses avantages structurels :

  • Confidentialité absolue : Aucune information identitaire (identité civile, domicile, coordonnées bancaires) n'est transmise au commerçant lors de la dotation du compte.
  • Gouvernance du capital : Impossibilité technique de parier à crédit ou d'excéder la valeur faciale du titre, encourageant une pratique ludique équilibrée et saine.
  • Accessibilité démocratique : Solution idéale pour tous les profils, y compris les usagers sans carte de crédit ou en situation de fragilité bancaire, tant qu'ils disposent de numéraire.
  • Modularité des dépôts : La faculté de cumuler plusieurs titres successifs permet d'atteindre avec précision le volume de capital souhaité pour sa session de jeu.
  • Incitations exclusives : De multiples plateformes valorisent cette approche en octroyant des lancers offerts ou des majorations de solde spécifiques aux utilisateurs de coupons.
  • Sécurité des transactions : L'absence de lien direct avec le compte courant élimine le risque de siphonnage de données sensibles lors d'une cyberattaque.

La généralisation de cette architecture est telle qu'il devient exceptionnel de localiser une plateforme de haut rang qui ne l'incorpore pas dans son catalogue transactionnel. Un casino acceptant cashlib ne se contente pas d'être un site cherchant à faciliter les entrées de fonds ; c'est un opérateur qui saisit la psychologie profonde de ses membres. Ces gestionnaires comprennent que pour qu'un usager se sente totalement libre de parier sur la Roulette Immersive ou de tester les fonctionnalités de Starburst, il doit impérativement jouir d'une tranquillité d'esprit totale. L'élimination radicale de l'anxiété liée à la sécurité des avoirs permet une concentration intégrale sur l'aspect récréatif de l'activité.

Les portails les plus influents de l'industrie, tels qu'Instant Casino ou l'enseigne Madnix, ont parfaitement intégré cette dimension éthique et sécuritaire. Leur panneau de caisse est épuré à l'extrême, valorisant les logos des solutions prépayées comme de véritables sceaux de confiance et de probité. En quelques battements de cils, le solde utilisateur est actualisé et l'épopée numérique peut débuter sans délai. C'est cette réactivité, associée à une protection de niveau militaire, qui consacre les titres prépayés comme la méthode de prédilection pour le futur des paris interactifs. Nous assistons à une véritable montée en compétence des habitudes de consommation des parieurs, qui deviennent de plus en plus intransigeants sur la sanctuarisation de leur vie privée, et le marché répond avec une efficacité remarquable à cette nouvelle exigence sociétale.

I Nostri Servizi

Consulenza Tecnica

Consulenza Tecnica

Pratiche e Atti

Pratiche e Atti

Servizi Finanziari

Servizi Finanziari